您好,欢迎进入创艺佳互联网家装
企业微博   |  企业微信       网站地图
0351-2223322
团装小区
首页 > 团装小区 > 富力城小区团装正在进行中……
99 65 33
姓名:
电话:
户型:
面积:
 

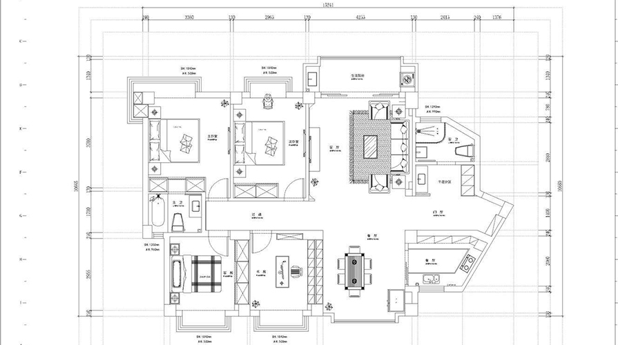
富力城小区团装正在进行中……


装修设计效果图的户型图










0351-2223322